
当前我省多数城市受所在区位经济状况、教育设施配置、学龄儿童规模、建设用地条件的限制,传统的异地新建校园项目逐渐减少,在原有用地范围内的改扩建项目日趋增多。中小学校园的改扩建成为了学校建设的热点。
既有中小学校园改扩建涉及诸多方面的内容。随着教育理念的转变、课程大纲的改革、教学方式的创新,既有校园难以适应现代化教学模式和管理方式的变革。并且不少校园是在快速化、批量化、标准化的背景下建设的,目前普遍存在功能用房配置不全使用面积不足、复合利用率低等问题。
作者:赵欣




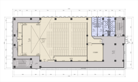
四层平面通过水平组合的方式将教学空间与图书室集约于一层平面内。





项目名称:昆明市晋宁区昆阳第二小学新建教学综合楼工程项目
项目机构:云南省城乡规划设计研究院勘察设计分院
项目成员:康忠学、曾涌、杨斌、赵欣、申江华、李钦、郭翔瑞、王伟楠